Aus welchem Land kommen Sie?


Vom Dorf- zum Quartiersplatz

Bei historischen Denkmälern liegt es in der Verantwortung aller Entscheidungsträger, bei Umbauten und Sanierungen behutsam damit umzugehen, dass diese für die Bevölkerung architektonische und emotionale Bezugspunkte sind. Zugleich muss die Architektur auf die Dynamik der kontinuierlich sich verändernden Stadt eingehen.

 

Interview: archithese mit Stefan Höglmaier – 2.10.2019
Visualisierungen und Pläne: Haimerl Architektur / raumstation Architekten

archithese    In Zusammenarbeit mit Haimerl Architektur und raumstation Architekten wird Euroboden den Derzbachhof – eines der ältesten Bauernhäuser (1751) im Stadtgebiet von München – umbauen und sanieren. Woher kommt das Interesse an diesem Bauwerk? Oder geht es vor allem um die Entwicklung des dazugehörigen Grundstücks, auf dem ja auch neue Wohnungen geplant sind?

Stefan Höglmaier
   Baudenkmäler sind architektonische und emotionale Bezugspunkte in der sich dynamisch und kontinuierlich verändernden Stadt. Sie zu erhalten und möglichst behutsam zu sanieren ist eine wichtige und spannende Aufgabe. Es geht weniger darum, diese zu konservieren, sondern vielmehr darum, sie wieder mit neuem Leben zu füllen und zu zeigen, dass sie eine Relevanz für die Zukunft haben.
Als ich zum ersten Mal von dem seit Jahrzehnten verfallenden Hof in Münchner Ortsteil Forstenried las, war es gewissermassen Liebe auf den ersten Blick. Das Haus ist ein wertvolles Relikt aus anderen Zeiten; es erzählt von der ruralen Vergangenheit des heutigen Münchener Stadtgebietes. Trotz städtebaulicher Nachverdichtung ist das Dörfliche hier in Forstenried mit seinem historischen Ensemble aus Kirche, Forsthaus, Schule und Restaurant Altem Wirt nach wir vor spürbar. Der Derzbachhof ist ein wichtiger Teil dieser Kontinuität. So ein Projekt ist allerdings sehr aufwendig und kann privatwirtschaftlich nur durch eine Nachverdichtung des Grundstücks gestemmt werden. Uns scheint es ein sehr tragfähiges Konzept, einerseits ein marodes Bauerhaus zu retten, und auf der anderen Seite auf dem vorhandenen Grundstück auch neuen Wohnraum zu schaffen.

Es ist nicht die erste Zusammenarbeit mit den Architekten Peter Haimerl und raumstation. Wie ist es zu den Kooperationen gekommen?

Mit beiden Architekten verbindet uns eine mehrjährige Kooperation; insbesondere im Zusammenhang mit Denkmalschutz. Peter Haimerls eigenwilliger Umgang mit historischen Gebäuden ist zugleich behutsam und unkonventionell. Mit ihm haben wir das über 250 Jahre alte Schusterbauerhaus im Münchner Stadtteil Riem in ein zeitgemässes Wohnhaus umgewandelt. Ohne die historische Struktur zu zerstören, haben wir dort als raumbildendes Element einen um 45 Grad gekippten Betonkubus eingesetzt, der sich über die gesamte Länge des Gebäudes erstreckt. Er stabilisiert Wände und Decken und strukturiert die beiden Wohneinheiten auf höchst spannungsvolle Weise.
Mit den Architekten von raumstation haben wir 2012 an einem schwierigen Denkmal gearbeitet: einem Hochbunker aus dem Zweiten Weltkrieg. Diesen bautechnisch kaum bezwingbaren, hermetischen Betonturmhaben wir zu einem offenen städtischen Wohnhaus transformiert. Seine schwierige Geschichte wurde dabei bewusst lesbar gelassen.

Was soll beim Derzbachhof saniert, was neu gebaut werden? Welche Architekten sind für welches Vorhaben zuständig?

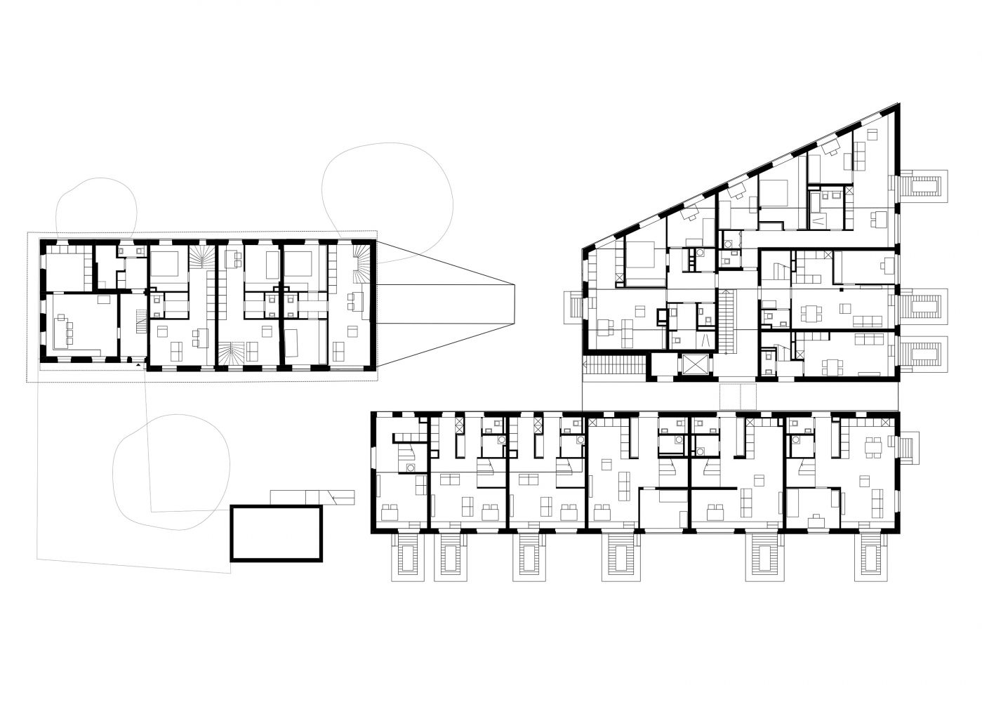
Das alte Bauernhaus mit Wohn- und Wirtschaftsräumen, Stall und Stadl soll denkmalgerecht saniert werden. Ebenso die Heurampe, die ins Stadl hinaufführt. Im mittleren Teil des Grundstück entsteht ein zusammenhängender Neubau mit unterschiedlichen Wohntypologien. Das Konzept stammt von Peter Haimerl. Er hat weiterhin die künstlerische Oberleitung. Für die weitere Entwicklung, Detaillierung, Ausführungsplanung und Realisierung sind aber raumstation Architekten verantwortlich.

Wie viele Wohnungen werden entstehen? Für welche Zielgruppe sind sie geplant?

Insgesamt entstehen 21 Wohnungen: 17 im Neubau und vier im Altbau. Wir wünschen uns eine heterogene Hofgemeinschaft und bieten dementsprechend einen ausgewogenen Mix unterschiedlicher Wohnungsgrössen- und Typologien an. Mehrgeschossige Hofhäuser, Etagenwohnungen, Maisonettwohnungen zum Kauf sowie kleine Mietwohnungen im ehemaligen Heustadl. Das Wohnungsangebot richtet sich an Familien, Paare und alleinstehende Menschen aller Generationen, die sowohl Rückzug suchen, als auch Lust auf Gemeinschaft haben. 

Wie ist das Verhältnis von Abriss zu Neubau im Umgang mit dem Bestandsgebäude? Wie soll das Bestandsgebäude genutzt werden? 

Wir reissen überhaupt nichts ab. Der Neubau nimmt insgesamt 18 Prozent der (oberirdischen) Grundstücksfläche ein. Dessen Architektur geht auf die Dimensionen der umgebenden Bebauung ein. Die weitere Grundstücksfläche wird teilweise öffentlicher, teilweise privater Aussenraum. Den ehemaligen Wohnteil des Bauernhauses teilt sich die Hofgemeinschaft. Wir planen dort Räume für Feiern, Co-Working-Spaces, eine Gästewohnung. Ausserdem sind ein Hofladen sowie ein Lager für Postpakete angedacht.

Der Hof soll noch stärker in den Forstenrieder Stadtteil eingebunden werden. Wie wird dies räumlich umgesetzt?

In Forstenried ist öffentlicher Raum zum Verweilen rar. Das Dorf ist durchschnitten von der Forstenrieder Allee. Um den Dorfkern zu stärken, öffnet Euroboden den vorderen Bereich des Grundstücks zum «Dorfplatz» für alle Bürger. Der öffentliche Raum reicht damit bis zu der historischen Eingangstür des Bauernhauses und fasst es räumlich ein. Von einer Sitzbank unter einer grossen Linde kann man dort auf die Kirche und das Forstamt blicken. Der Derzbachhof wird nicht nur räumlich, sondern auch programmatisch besser in das Ensemble integriert. 

Welche Aussenräume des Grundstücks werden öffentlich, welche privat zugänglich sein?

Erst hinter dem neuen «Dorfplatz» beginnt der private Bereich mit Fahrradstellplätzen und einem gepflasterten Weg, der zu den Eingängen des Neubaus führt. Jenseits des Neubaus öffnet sich dann der gemeinschaftliche Garten der Bewohnerinnen und Bewohner mit Beeten, Grillflächen, Hühnerhaus, Liegedecks und einer Streuobstwiese. Die Privatterrassen der einzelnen Wohnungen sind jeweils von einer Sitzmauer und Hochbeeten eingefasst.

Wie ist der aktuelle Stand? Wann soll der Bau beginnen?

Sobald die Baugenehmigung erteilt ist, werden wir loslegen, voraussichtlich wird dies im kommenden Jahr sein.

Vielen Dank für das Gespräch.

Im Rückzug-Heft 2.2019 von archithese geht es um das Bedürfnis, auf's Land zu ziehen und die Herausforderungen, historischen Bestand in eine zeitgemässe Form zu überführen.

>  Am 27. Juni 2019 hielt der Berliner Architekt Thomas Kröger im Vitra Design Museum einen Werkvortrag, der in Zusammenarbeit mit Euroboden stattfand. Hier geht's zum Film.

Unsere Empfehlung

archithese 2.2019

Rückzug


Unsere Empfehlung

archithese 3.2018

Bayern


Unsere Empfehlung

archithese 2.2018

Wohnungsbau


Kommentare

Einen Kommentar schreiben

Spamschutz: Rechnen Sie die Aufgabe und tragen Sie die Lösung in das Feld ein:
Was ist die Summe aus 8 und 4?